
Nachhaltig wohnen: Individuell geplante Fertighäuser!

Flexibel in der Planung. Individuell wie du selbst.
Seit mehr als 20 Jahren entwickelt und baut Enoviahaus energieeffiziente Häuser auf Basis des Naturstoffes Holz. Wir blicken zurück auf über 20 Jahre Erfahrung in der Produktion und Montage von Fertighäusern, bei denen jede einzelne Wand mit größter Sorgfalt handwerklich gefertigt wird. In unserem Werk bei Frankfurt (Oder) wurden seit 2003 schon mehrere hundert Fertighäuser in Holzrahmenbauweise hergestellt. Fenster und Türen werden in unserem eigenen Werk nach individuellen Vorgaben produziert.
Wir bauen 100% freigeplante Architektenhäuser – besitzten ein eigenes Sägewerk, ein Fertighauswerk und zuzsätlich ein eigenes Fensterwerk. Alle unsere bisherigen Bauvorhaben sind Unikate bei denen wir die inidivuellen Wünsche unserer Kunden verwirklicht haben. Treten Sie mit uns in Kontakt, wir helfen Ihnen gerne bei der Verwirklichung Ihres Traumhauses !
Enovia Hausideen - mehr als nur ein Fertighaus
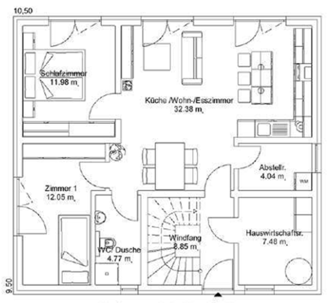
Noble 123 F
Energieeffizienzhau 40

Nettofläche: 120m² - Geschosse: 2 - Flachdach - Außenmaße: 10,00m x 7,60m - Erdgeschoß: 62,28m² - Obergeschoß: 58,30m²
Ihre eigenen vier Wände – optimal genutzt
Innovation und Konzentration auf das Wesentliche machen das Haus zu einem besonderen Wohnvergnügen. Schon die Baupläne verraten, wie sehr Sie sich wohlfühlen werden! Darauf baut auch die flexible Wohnphilosophie auf: Zur Standardausstattung gehören drei Schlafzimmer und ein großzügiger 30 m² großer Wohnraum. Durch die bodentiefen Fenster und Terrassentüren im Erdgeschoss ist das Haus auf natürliche Weise mit der Umgebung verbunden. Sie werden schnell merken, wie das Haus mit Ihnen zusammen auflebt. Genau richtig für junge Familien, die Wert darauf legen, ihren Wohnraum intelligent zu nutzen.
Abbildungen und Grundrisse sind aus der Sicht des Illustrators und daher nicht verbindlich. Änderungen vorbehalten. Hausabbildung kann Sonderausstattung enthalten.
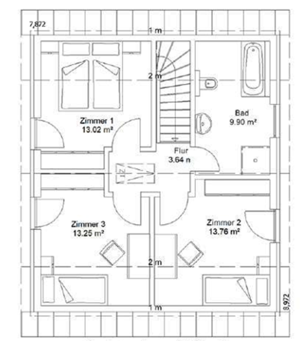
Noble 123 W
Energieeffizienzhau 40

Nettofläche: 120m² - Geschosse: 2 - Walmdach 22° - Außenmaße: 11,00m x 7,60m - Erdgeschoß: 62m² - Obergeschoß: 58m²
Das Haus mit dem überzeugenden Wohnkonzept
Mit diesem besonderen Haus eröffnen sich Ihnen innovative Wohnwelten. Dieses Haus ist konsequent auf die Ansprüche moderner Familien zugeschnitten: Energiesparen, natürliches Licht und offenes Raumkonzept. Unter dem schrägen Dach beginnt Ihr geradliniger Wohnstil. Natürlichkeit ist heutzutage die Devise für modernes Wohnen. Darum ist dieses Enovia Haus mit bodentiefen Fenstern und einer Hebeschiebetüre im Erdgeschoss ausgestattet. Genießen Sie den freien Blick auf Ihren Garten und das Tageslicht in den drei Schlafzimmern und im über 30 m² großen Wohnraum! So fühlen sich Familien wohl.
Abbildungen und Grundrisse sind aus der Sicht des Illustrators und daher nicht verbindlich. Änderungen vorbehalten. Hausabbildung kann Sonderausstattung enthalten.
Noble 130 P
Energieeffizienzhau 40

Nettofläche: 127m² - Geschosse: 2 - Pultdach 4° - Außenmaße: 8,98m x 8,98m - Erdgeschoss: 66m² - Obergeschoss: 61m²
Kompakt, klassisch, klug
Dieses geräumige zweigeschossige Pultdachhaus ist kompakt gebaut – auf diese Weise werden Raum und Energie optimal genutzt. Für einen kräftigen, optischen Akzent sorgt die zweifarbig gestaltete Fassade. Die klassische Aufteilung überzeugt: Küche, Wohnzimmer, WC und Hauswirtschaftsraum im Erdgeschoss, die Ruheräume liegen oben. Hier finden Sie neben dem Elternschlafzimmer und dem Bad zwei schöne und geräumige Kinderzimmer.
Abbildungen und Grundrisse sind aus der Sicht des Illustrators und daher nicht verbindlich. Änderungen vorbehalten. Hausabbildung kann Sonderausstattung enthalten.
Vielseitige 138
Energieeffizienzhau 40

Nettofläche: 134m² - Geschosse: 2 - Satteldach 25° - Außenmaße: 8,98m x 10,23m - Erdgeschoß: 70m² - Obergeschoß: 64m²
Modern und mediterran
Moderne Architektur mit einem Hauch mediterraner Ästhetik - das Vielseitige 138 erfüllt Ihnen diesen Wunsch. Dieses Enovia-Stadthaus wartet mit zwei Vollgeschossen auf. Ein großer Wohn-/Ess-bereich mit offener Küche macht Lust auf Geselligkeit und entspannte Lebensart. Besonders schön: Der Erker mit Zugang zur Terrasse. Im Obergeschoss ist reichlich Platz für zwei Kinderzimmer, ein Elternschlafzimmer und ein geräumiges Bad.
Abbildungen und Grundrisse sind aus der Sicht des Illustrators und daher nicht verbindlich. Änderungen vorbehalten. Hausabbildung kann Sonderausstattung enthalten.
Vielseitige 130
Energieeffizienzhau 40

Nettofläche: 127m² - Geschosse: 2 - Satteldach 25° - Außenmaße: 8,98m x 8,98m - Erdgeschoß: 66m² - Obergeschoß: 60m²
Schöner Wohnen in der Stadt
Schmale Grundstücke verlangen nach den passenden Hauskonzepten. Das Vielseitige 130 von Enoviahaus ist hierfür die ideale Lösung – optimal geplant für das Leben in der Stadt. Zwei Vollgeschosse sorgen für eine Menge Platz. Unten lädt der große Wohn-/Essbereich mit offener Küche die ganze Familie zum Wohlfühlen und Entspannen ein. Oben ist reichlich Raum für Eltern und zwei Kinder und ein geräumiges Bad inbegriffen.
Abbildungen und Grundrisse sind aus der Sicht des Illustrators und daher nicht verbindlich. Änderungen vorbehalten. Hausabbildung kann Sonderausstattung enthalten.
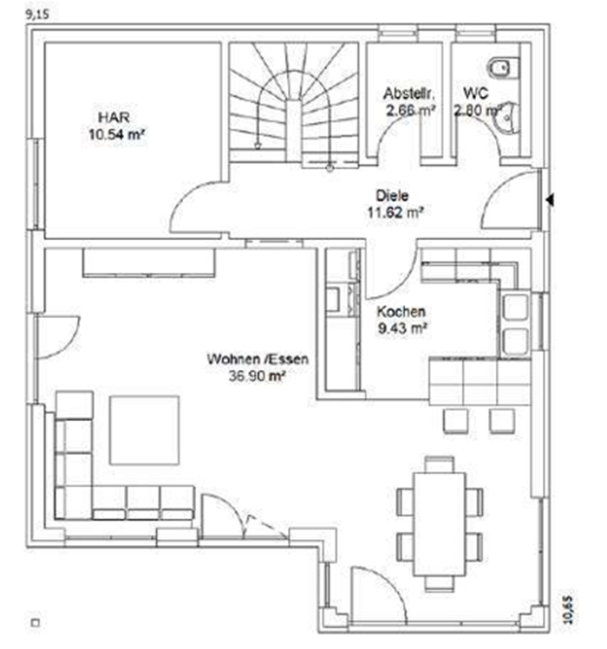
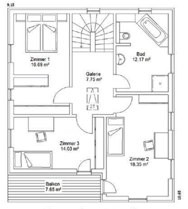
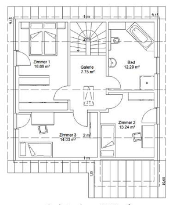
Noble 155 P
Energieeffizienzhau 40

Nettofläche: 150m² - Geschosse: 2 - Pultdach 4° - Außenmaße: 9,15m x 10,65m - Erdgeschoß: 74m² - Obergeschoß: 76m²
Schnitt mit Raffinesse
In diesem schönen Enovia Haus sind Form, Funktion und Wirtschaftlichkeit perfekt vereint. Das Erdgeschoss begeistert durch seinen Schnitt. Im großen Wohn- und Essbereich fällt der Erker ins Auge. Eine offene Galerie verbindet harmonisch das Unten mit dem Oben. Ein weiteres attraktives Detail finden Sie im Obergeschoss: der großzügig begehbare Kleiderschrank im Schlafzimmer. Die Kinderzimmer punkten mit direktem Zugang zum Balkon.
Abbildungen und Grundrisse sind aus der Sicht des Illustrators und daher nicht verbindlich. Änderungen vorbehalten. Hausabbildung kann Sonderausstattung enthalten.
Noble 130 W
Energieeffizienzhau 40

Nettofläche: 127m² - Geschosse: 2 - Walmdach 22° - Außenmaße: 8,98m x 8,98m - Erdgeschoß: 66m² - Obergeschoß: 61m²
Gute Architektur auf wenig Raum
Das Noble 130W beweist eindrucksvoll: Ein stilvoller Grundriss kommt auch mit wenig Raum aus. Dieser Architektenentwurf überzeugt mit klaren Linien und einer funktionalen Raumaufteilung. Der Wohn- und Essbereich mit Küche ist großzügig geplant; sehr nützlich ist auch der Hauswirtschaftsraum. Unter dem Dach befinden sich neben dem Elternschlafzimmer zwei Kinderzimmer und ein Bad.
Abbildungen und Grundrisse sind aus der Sicht des Illustrators und daher nicht verbindlich. Änderungen vorbehalten. Hausabbildung kann Sonderausstattung enthalten.
Vielseitige 152
Energieeffizienzhau 40

Nettofläche: 148m² - Geschosse: 2 - Satteldach 22° - Außenmaße: 9,96m x 9,96m - Erdgeschoß: 76m² - Obergeschoß: 72m²
Platz satt
Die Formensprache von diesem Enovia-Haus ist klar und harmonisch. Bei diesem zweigeschossigen Haus passt alles perfekt zusammen. Die großen Fenster lassen Licht und Wärme hinein und tragen zum besonderen Wohnerleben bei. Platz zum Wohlfühlen gibt es reichlich: ebenerdig im großzügigen Wohn-/Essbereich mit offener Küche. Im Obergeschoss in geräumigen Kinderzimmern, Elternschlafzimmer und Bad. Lassen Sie sich begeistern!
Abbildungen und Grundrisse sind aus der Sicht des Illustrators und daher nicht verbindlich. Änderungen vorbehalten. Hausabbildung kann Sonderausstattung enthalten.
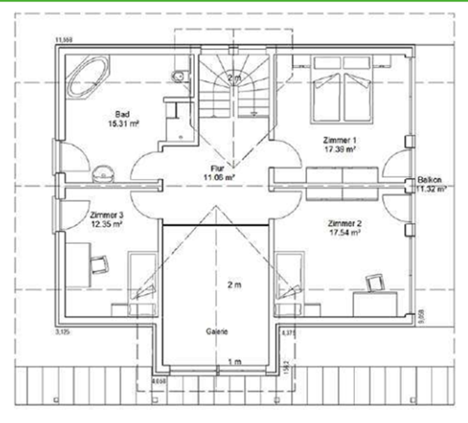
Noble 155 W
Energieeffizienzhau 40

Nettofläche: 150m² - Geschosse: 2 - Walmdach 22° - Außenmaße: 9,15m x 10,65m - Erdgeschoß: 74m² - Obergeschoß: 76m²
Wohnen mit flexiblem Konzept
Das flexible Noble 155W bietet Ihnen viel Platz und Gestaltungsmöglichkeiten. Im Erdgeschoss lässt es sich im Wohn- und Essbereich mit offener Küche auf 46 m² großzügig leben. Das Obergeschoss bietet neben dem Elternschlafzimmer Raum für bis zu drei Kinder. Alternativ zum dritten Kinderzimmer können Sie Ihr Schlafzimmer mit einer großen Ankleide ausstatten lassen. Verwirklichen Sie Ihre Wünsche!
Abbildungen und Grundrisse sind aus der Sicht des Illustrators und daher nicht verbindlich. Änderungen vorbehalten. Hausabbildung kann Sonderausstattung enthalten.
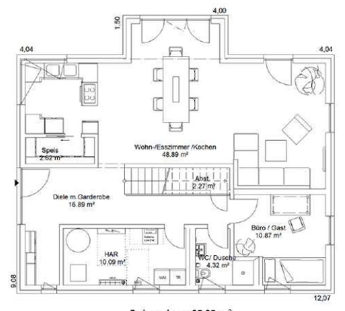
Vielseitige 190
Energieeffizienzhau 40

Nettofläche: 187m² - Geschosse: 2 - Satteldach 25° - Außenmaße: 10,58m x 12,07m - Erdgeschoß: 96m² - Obergeschoß: 91m²
Eine Villa mit urbanem Flair
Erleben Sie Ihr neues Zuhause – ein elegantes, zweistöckiges Familienhaus für eine große Familie. Das Obergeschoss beherbergt 4 geräumige Schlafzimmer, eine begehbare Garderobe und ein luxuriöses Badezimmer mit Dusche, Badewanne und zwei Waschbecken. Der vielseitige Gästebereich im Erdgeschoss kann auch als Home Office gestaltet werden. Die moderne Architektur mit einem einzigartigen zweistöckigen Erker und Eckfenstern verleiht dem Gebäude urbanen und modernen Charme, während die großzügigen Räume höchsten Komfort und Eleganz verkörpern.
Abbildungen und Grundrisse sind aus der Sicht des Illustrators und daher nicht verbindlich. Änderungen vorbehalten. Hausabbildung kann Sonderausstattung enthalten.
Vielseitige 113
Energieeffizienzhau 40

Nettofläche: 111m² - Geschosse: 1 1/2 - Satteldach 35° - Kniestock 1,25m - Außenmaße: 7,87m x 8,97m - Erdgeschoß: 58m² - Dachgeschoß: 53m²
Kompakt und familienfreundlich
Auch ein kleines Enovia Haus kann ausreichend Platz für alle Familienmitglieder bieten. Dies setzt einen perfekt geplanten Grundriss voraus. Im Erdgeschoss erwarten Sie eine offene Küche und ein geschickt gestaltetes Wohnzimmer. Der Hauswirtschaftsraum bietet genug Platz für Haustechnik, Waschmaschine und Trockner. Im Dachgeschoss liegen Schlafräume und Bad. Die Kinderzimmer sind gut geschnitten und bieten auch passende Nischen für große Wäscheschränke.
Abbildungen und Grundrisse sind aus der Sicht des Illustrators und daher nicht verbindlich. Änderungen vorbehalten. Hausabbildung kann Sonderausstattung enthalten.
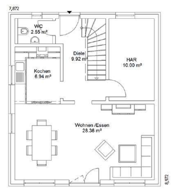
Vielseitige 123.1
Energieeffizienzhau 40

Nettofläche: 119m² - Geschosse: 1 1/2 - Satteldach 42° - Kniestock 1,20m - Außenmaße: 10,00m x 7,60m - Erdgeschoß: 62m² - Dachgeschoß: 57m²
Erleben Sie modernes Wohnen!
Ein klassisches Satteldach in Verbindung mit einer modernen Gaube mit Flachdach und bodentiefen Fenstern verschafft dem Vielseitigen 123.1 eine ganz besondere Ausstrahlung. Auch sein Inneres sorgt für ein angenehmes Ambiente. Im großzügigen Wohnzimmer mit lichtdurchfluteten Terrassenfenstern kommt die Familie gern zusammen. Hebeschiebetüren im Erdgeschoss sorgen für besonderen Komfort. Im Dachgeschiss bieten drei Schlafzimmer Platz für Eltern und Kinder. Dieses Haus ist zeitlos schön und wird Ihnen täglich viel Lebensqualität bringen.
Abbildungen und Grundrisse sind aus der Sicht des Illustrators und daher nicht verbindlich. Änderungen vorbehalten. Hausabbildung kann Sonderausstattung enthalten.
Vielseitige 125
Energieeffizienzhau 40

Nettofläche: 122m² - Geschosse: 1 1/2 - Satteldach 38° - Kniestock 1,40m - Außenmaße: 10,16m x 7,60m - Erdgeschoß: 63m² - Dachgeschoß: 59m²
An alles gedacht
Mit seiner cleveren Aufteilung bietet das Vielseitige 125 alles, was eine Familie braucht: Im Erdgeschoss laden 36m² zum entspannten Wohnen, Kochen und Essen ein. Neben Garderobe und Gäste-WC ist sogar noch Platz für einen praktischen Hauswirtschaftsraum. Das Dachgeschoss beherbergt – jeweils in angenehmer Größe – das Elternschlafzimmer, zwei Kinderzimmer und ein schönes Bad. Durch mehrere bodentiefe Fenster kommt in beide Geschosse reichlich Licht. So lässt sich‘s gut leben!
Abbildungen und Grundrisse sind aus der Sicht des Illustrators und daher nicht verbindlich. Änderungen vorbehalten. Hausabbildung kann Sonderausstattung enthalten.
Vielseitige 139
Energieeffizienzhau 40

Nettofläche: 136m² - Geschosse: 1 1/2 - Satteldach 24° - Kniestock 2,30m - Außenmaße: 11,10m x 7,10m - Erdgeschoß: 70m² - Dachgeschoß: 65m²
Reichlich Raum!
In diesem geräumigen Enovia-Haus kann sich die ganze Familie entfalten. Viel Platz und wenige Schrägen machen Lust darauf, sich einzurichten und ganz entspannt zu wohnen: Aus dem großzügigen Wohn- und Essbereich fällt der Blick ungehindert in den Garten. Von der offenen Küche geht noch eine zugängliche Speisekammer ab. Eine Garderobe, Gäste-WC und Hauswirtschaftsraum sind weitere Pluspunkte. Im Dachgeschoss überrascht das Elternschlafzimmer durch eine zusätzliche Sitzecke. Beide Kinderzimmer sind schön geräumig und auch das Bad hat eine komfortable Größe.
Abbildungen und Grundrisse sind aus der Sicht des Illustrators und daher nicht verbindlich. Änderungen vorbehalten. Hausabbildung kann Sonderausstattung enthalten.
Vielseitige 141
Energieeffizienzhau 40

Nettofläche: 137m² - Geschosse: 1 1/2 - Satteldach 35° - Kniestock 1,25m - Außenmaße: 9,15m x 10,65m - Erdgeschoß: 74m² - Dachgeschoß: 64m²
Wärme, Licht und Raum
Mit großzügigen Fenstern im Terrassenbereich entwickelt das Vielseitige 141 eine leichte und lichtdurchflutete Atmosphäre. Durch den Erker wird der Essbereich dezent vom Wohnzimmer getrennt. Im Dachgeschoss setzt sich die freundliche Gestaltung konsequent fort. Zwei Kinderzimmer und ein Elternschlafzimmer mit französischem Balkon bieten ausreichend Platz. Ein bodentiefes Fenster verleiht dem Badezimmer ein besonderes Ambiente.
Abbildungen und Grundrisse sind aus der Sicht des Illustrators und daher nicht verbindlich. Änderungen vorbehalten. Hausabbildung kann Sonderausstattung enthalten.
Vielseitige 165
Energieeffizienzhau 40

Nettofläche: 162m² - Geschosse: 1 1/2 - Satteldach 40° - Kniestock 1,25m - Außenmaße: 10,76m x 10,41m - Erdgeschoß: 86m² - Dachgeschoß: 75m²
Ein Haus, ein Konzept, ein Lebensgefühl!
Das Vielseitige 165 mit Satteldach schafft mit architektonischer Erfahrung den perfekten Wohntraum für Familien. Drei Schlafzimmer bieten Platz für Eltern und Kinder und im großzügigen Wohnzimmer mit bodentiefen Fenstern kommt auch Ihre Familie gern zusammen. Die Hebeschiebetür im Erdgeschoss betont den besonderen Stil. Hier bekommen Sie eine zeitgemäße Ausstattung, die individuell Raum, Licht und Funktionalität bietet. Das Herz des Hauses, eine Wärmepumpe, kann zum Heizen und zum Kühlen genutzt werden. Durch das Energiesparkonzept sowie abgestimmte und natürliche Materialien sparen Sie dauerhaft Kosten. Dieses Enovia Haus bleibt zeitlos schön und verschafft Ihnen täglich viel Lebensqualität. Das ist moderner Wohnkomfort für die ganze Familie.
Abbildungen und Grundrisse sind aus der Sicht des Illustrators und daher nicht verbindlich. Änderungen vorbehalten. Hausabbildung kann Sonderausstattung enthalten.
Vielseitige 167
Energieeffizienzhau 40

Nettofläche: 164m² - Geschosse: 1 1/2 - Satteldach 25° - Kniestock 2m - Außenmaße: 11,20m x 9,00m - Erdgeschoß: 84m² - Dachgeschoß: 79m²
Komfort und Flexibilität
Das Vielseitige 167 begeistert durch einen großen, lichtdurchfluteten Wohn-/Essbereich mit offener Küche. Mehrere Terrassentüren führen in den Garten. Außerdem im Erdgeschoss zu finden: der Technikraum, das Gäste-WC und ein weiteres Zimmer, das Sie als Arbeitszimmer, als Gästezimmer oder als großen Hauswirtschaftsraum nutzen können. Das Dachgeschoss bietet auf knapp 80 m² reichlich Raum für das Elternschlafzimmer, drei Kinderzimmer, eine Ankleide als auch das Familienbad.
Abbildungen und Grundrisse sind aus der Sicht des Illustrators und daher nicht verbindlich. Änderungen vorbehalten. Hausabbildung kann Sonderausstattung enthalten.
Vielseitige 184
Energieeffizienzhau 40

Nettofläche: 179m² - Geschosse: 1 1/2 - Satteldach 22° - Kniestock 1,80m - Außenmaße: 11,56m x 10,62m - Erdgeschoß: 94m² - Dachgeschoß: 85m²
Licht und Leichtigkeit
Das schöne, lichtdurchflutete Vielseitige 184 begeistert durch sein außergewöhnliches Fensterkonzept, Design und dem großen Balkon. Erleben Sie Leichtigkeit und Lichtfülle – unterstrichen durch natürliche Materialien und fein abgestimmte Farbnuancen. Durchdacht aufgeteilt, bietet dieses Enovia Haus der ganzen Familie viel gemeinsamen Raum und Komfort.
Abbildungen und Grundrisse sind aus der Sicht des Illustrators und daher nicht verbindlich. Änderungen vorbehalten. Hausabbildung kann Sonderausstattung enthalten.
Ausgewogene 86
Energieeffizienzhau 40

Nettofläche: 83m² - Geschosse: 1 - Walmdach 20° - Außenmaße: 9,57m x 10,57m
Alles auf einer Ebene
Ob als Zuhause für junge Familien oder als Wohnsitz für die besten Jahre des Lebens: Das Ausgewogene 86 kann Ihre Träume verwirklichen. Reichlich Platz dafür ist vorhanden – und das auf nur einer Ebene. Drei bodentiefe Fenster geben den Blick in den Garten frei und lassen dabei viel Licht von außen herein.
Abbildungen und Grundrisse sind aus der Sicht des Illustrators und daher nicht verbindlich. Änderungen vorbehalten. Hausabbildung kann Sonderausstattung enthalten.
Ausgewogene 105
Energieeffizienzhau 40

Nettofläche: 103m² - Geschosse: 1 - Walmdach 20° - Außenmaße: 10,57m x 11,57m
Komfort ganz ohne Treppen
Komfortables Wohnen auf einer Ebene bietet Ihnen viele Vorteile. Das Ausgewogene 105 mit Walmdach bietet Ihnen auch im späteren Alter Komfort – auf Wunsch auch komplett barrierefrei gestaltbar. Vom großzügigen Wohnzimmer aus, führt eine Terrassentür ins Grüne. Auch die Funktionsräume sind gut durchdacht: An die offene Küche schließt eine Speisekammer an, ein geräumiger Hauswirtschaftsraum macht die Hausarbeit für Sie leicht.
Abbildungen und Grundrisse sind aus der Sicht des Illustrators und daher nicht verbindlich. Änderungen vorbehalten. Hausabbildung kann Sonderausstattung enthalten.
Ausgewogene 113
Energieeffizienzhau 40

Nettofläche: 110m² - Geschosse: 1 - Walmdach 25° - Außenmaße: 13,16m x 11,81m
Ideenreich und treppenfrei
Dieser Enovia-Winkelbungalow mit Walmdach bietet Ihnen komfortables Wohnen auf einer Ebene. Auf Wunsch kann er auch komplett barrierefrei ausgeführt werden. Der Grundriss überrascht durch funktionale Details wie eine an die Küche angeschlossene Speisekammer und einen Hauswirtschaftsraum. So können Sie durch die geschickte Planung viel Wohnqualität erleben – ganz ohne Treppensteigen.
Abbildungen und Grundrisse sind aus der Sicht des Illustrators und daher nicht verbindlich. Änderungen vorbehalten. Hausabbildung kann Sonderausstattung enthalten.
Ausgewogene 123
Energieeffizienzhau 40

Nettofläche: 121m² - Geschosse: 1 - Walmdach 22° - Außenmaße: 10,07m x 14,07m
Reichlich Wohlfühlatmosphäre
Das Ausgewogene 123 bietet reichlich Platz und lädt zum Wohlfühlen ein. Genießen Sie den großzügigen Wohn.- und Essraum. Selbst aus dem offenen Küchenbereich geht der Blick hinaus auf die Terrasse und den Garten. Auch das Schlafzimmer hat eine einladende Atmosphäre – ein großer Kleiderschrank ist hier völlig unproblematisch. Sehr nützlich sind der geräumige Hauswirtschaftsraum und das separate Gästezimmer. Gesamteindruck: zum Verlieben!
Abbildungen und Grundrisse sind aus der Sicht des Illustrators und daher nicht verbindlich. Änderungen vorbehalten. Hausabbildung kann Sonderausstattung enthalten.
Ausgewogene 135
Energieeffizienzhau 40

Nettofläche: 133m² - Geschosse: 1 - Walmdach 22° - Außenmaße: 12,12m x 13,12m
Komfort mit klugem Konzept
Das Ausgewogene 135 bietet Ihnen Leben auf einer Ebene und das mit reichlich Platz. Der klassische Walmdach-Bungalow begeistert mit einem lichtdurchfluteten Raumkonzept und viel Komfort. In diesem Haus fühlen sich auch Individualisten wohl. Neben dem vom Schlafzimmer aus erreichbaren Bad, gibt es zusätzlich ein separates Gäste-WC mit Dusche. Die Garage grenzt an den Heizraum – ohne zu stören.
Abbildungen und Grundrisse sind aus der Sicht des Illustrators und daher nicht verbindlich. Änderungen vorbehalten. Hausabbildung kann Sonderausstattung enthalten.
Funktionale 122 / DHH
Energieeffizienzhau 40

Nettofläche: 120m² - Geschosse: 2 - Walmdach 25° - Außenmaße: 7,11m x 10,60m - Erdgeschoß: 62m² - Obergeschoß: 57m²
Klassisch, komfortabel, kinderfreundlich!
In diesem klassisch-schönen Doppelhaus finden gleich zwei Familien ihr Zuhause. Der offene Wohn-/Essbereich dieses Enovia Doppelhauses lädt Familienmitglieder sowie Freunde zum Entspannen und geselligen Miteinander ein. Das Schlafzimmer im ersten Stock bietet den Eltern mit seiner großen Ankleide angenehmen Komfort. In den beiden hellen Kinderzimmern ist Platz zum Schlafen, Arbeiten und Spielen. Das Dachgeschoss können Sie bei Bedarf später ausbauen.
Abbildungen und Grundrisse sind aus der Sicht des Illustrators und daher nicht verbindlich. Änderungen vorbehalten. Hausabbildung kann Sonderausstattung enthalten.
Funktionale 131 / DHH
Energieeffizienzhau 40

Nettofläche: 128m² - Geschosse: 1 1/2 - Satteldach 38° - Außenmaße: 7,96m x 10,00m - Erdgeschoß: 66m² - Dachgeschoß: 62m²
Familienfreundlich und praktisch
Dieses Enovia Doppelhaus ist ganz auf die Bedürfnisse von Familien zugeschnitten. Im Erdgeschoss laden ein geräumiges Wohn-/Esszimmer mit Gartenzugang und bodentiefen Terrassenfenstern zum Entspannen ein. Gut durchdacht sind Diele, Küche, ein Hauswirtschaftsraum sowie Gäste-WC. Im Dachgeschoss liegen das Elternschlafzimmer, die Kinderzimmer und das Bad mit Wanne und Dusche. Grundriss und Fassade gestalten wir auf Wunsch für Sie um.
Abbildungen und Grundrisse sind aus der Sicht des Illustrators und daher nicht verbindlich. Änderungen vorbehalten. Hausabbildung kann Sonderausstattung enthalten.
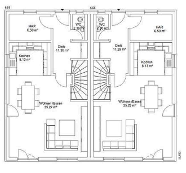
Funktionale 160 / ZFH
Energieeffizienzhau 40

Nettofläche: 158m² - Geschosse: 2 - Walmdach 22° - Außenmaße: 9,50m x 10,50m - Wohnung 1: 65m² - Wohnung 2: 76m²
Luxus und Intimität für zwei Familien
Willkommen in einem einzigartigen Gebäude, das als Zuhause für zwei Familien mit Kind geplant wurde. Die schlichte Architektur mit großen Fenstern verleiht dem Haus zeitlose Eleganz und sorgt für hervorragende Belichtung. Das traditionelle Walmdach verleiht dem Gebäude einen charmanten, zeitlosen Charakter. Der gemeinsame Eingang und das Treppenhaus schaffen eine harmonische Verbindung zwischen den beiden Wohnungen. Der Grundriss beider Wohnungen ist sehr ausgewogen, wobei das Erdgeschoss etwas kompakter ist.
Abbildungen und Grundrisse sind aus der Sicht des Illustrators und daher nicht verbindlich. Änderungen vorbehalten. Hausabbildung kann Sonderausstattung enthalten.
Funktionale 171 / DHH
Energieeffizienzhau 40

Nettofläche: 169m² - Geschosse: 2 1/2 - Satteldach 35° - Außenmaße: 6,55m x 11,61m - Erdgeschoß: 63m² - Obergeschoß: 59m² - Dachgeschoß: 46m²
Viel Platz zum fairen Preis
Das Funktionale 171 bietet reichlich Platz: Im Erdgeschoss lässt es sich im Wohn- und Essbereich mit offener Küche auf 44 m² sehr entspannt leben. Auch im Obergeschoss ist Raum für bis zu vier Personen und ein Bad enthalten. Wächst eventuell die Familie oder Sie brauchen einen Hobbyraum? In diesem Fall kann der Spitzboden im Dachgeschoss als Ausbaureserve dienen.
Abbildungen und Grundrisse sind aus der Sicht des Illustrators und daher nicht verbindlich. Änderungen vorbehalten. Hausabbildung kann Sonderausstattung enthalten.
Funktionale 176 / DHH
Energieeffizienzhau 40

Nettofläche: 173m² - Geschosse: 2 1/2 - Flachdach 7° - Kniestock 2,30m - Außenmaße: 7,00m x 10,30m - Erdgeschoss: 59m² - Obergeschoss: 55m² - Dachgeschoss: 58m²
Schön großzügig!
Das Funktionale 176 ist als stilvolle und variable Doppelhaushälfte planbar. Die Designfassade besticht durch ihre klare Form, der Grundriss überzeugt durch sein funktionales Konzept. Der Bereich Essen und Wohnen ist offen gestaltet, mit direktem Zugang zur Küche und Terrasse. Das Obergeschoss bietet Raum für das Elternschlafzimmer, zwei Kinderzimmer und das Familienbad. Im Dachgeschoss: ein großes Zimmer und ein zusätzliches Bad!
Abbildungen und Grundrisse sind aus der Sicht des Illustrators und daher nicht verbindlich. Änderungen vorbehalten. Hausabbildung kann Sonderausstattung enthalten.
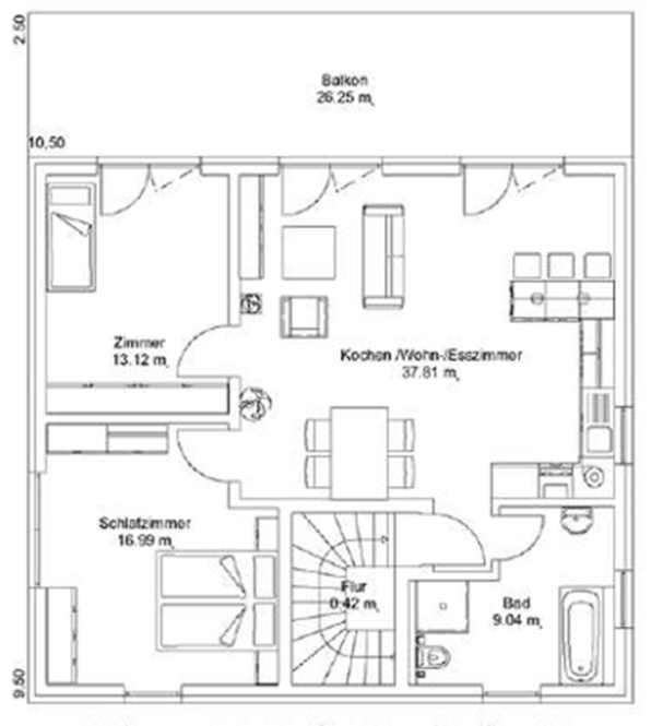
Funktionale 160+ / ZFH
Energieeffizienzhau 40

Nettofläche: 158m² - Geschosse: 2 - Walmdach 22° - Außenmaße: 9,50m x 10,50m - Wohnung 1: 65m² - Wohnung 2: 76m² / Balkon 26m²
Eine Villa mit Urlaubsambiente
Diese elegante zweigeschossige Villa mit zwei Wohnungen ist ideal für zwei kleine Familien. Große Fenster sorgen für optimale Belichtung, während der geräumige Balkon dem oberen Apartment einen modernen Charakter verleiht. Beide Wohnungen bieten großzügige Wohnbereiche, in denen Wohnzimmer, Essbereich und Küche eine gemütliche Einheit bilden. Die Terrasse bzw. der Balkon geben dem Gebäude einen besonderen und entspannten Charakter. Die überdachte Terrasse im Erdgeschoss, in Verbindung mit den bodentiefen Fenstern, bietet viele gute Gestaltungs-möglichkeiten.
Abbildungen und Grundrisse sind aus der Sicht des Illustrators und daher nicht verbindlich. Änderungen vorbehalten. Hausabbildung kann Sonderausstattung enthalten.
Funktionale 239 / MGH
Energieeffizienzhau 40

Nettofläche: 237m² - Geschosse: 2 - Satteldach 24° - Außenmaße: 10,65m x 13,65m - Wohnung 1: 170m² EG + OG - Wohnung 2: 55m² / EG
Funktionalität und Eleganz
Dieses einzigartige Zuhause ist ein Meisterwerk, das Funktionalität und Eleganz perfekt kombiniert. Das klassische Satteldach verleiht dem Gebäude eine klare, ästhetische Linie, während die imposante Größe von 237m2 viel Wohnraum in zwei Wohnungen unterschiedlicher Größe bietet. Separate Eingänge zu beiden Wohnungen und ein durchdachter Grundriss schaffen ein vielseitiges Zuhause. Das größere Apartment liegt auf zwei Ebenen und bietet großzügigen Raum für eine Familie mit Kindern, während das kleinere ideal für Paare oder Großeltern konzipiert ist. Zum HWR gibt es einen separaten Außeneingang, was beide Apartments voneinander vollkommen unabhängig macht.
Abbildungen und Grundrisse sind aus der Sicht des Illustrators und daher nicht verbindlich. Änderungen vorbehalten. Hausabbildung kann Sonderausstattung enthalten.
Funktionale 230 W / MGH
Energieeffizienzhau 40

Nettofläche: 227m² - Geschosse: 2 - Walmdach 25° - Außenmaße: 10,66m x 13,66m - Wohnung 1: 133m² - Wohnung 2: 94m²
Elegante Verbindung von Doppel- und Mehrgenerationenhaus
Entdecken Sie die architektonische Fusion von Tradition und Modernität. Die dynamische Form des Gebäudes entsteht durch die Verschmelzung zweier rechteckiger Häuser unterschiedlicher Größe. Das kleinere Zuhause, ein intimes Refugium für eine 2+1 Familie, harmoniert perfekt mit dem großzügigeren Gebäudeteil für eine 2+2 Familie. Terrassentüren öffnen sich zum Garten und bringen Naturlicht in jeden Raum, während die großzügigen Schlafzimmer für höchsten Komfort sorgen. Eine moderne-repräsentative Silhouette verleiht dem Gebäude Dynamik, während das mehrspitzige Dach einen Hauch von Eleganz hinzufügt.
Abbildungen und Grundrisse sind aus der Sicht des Illustrators und daher nicht verbindlich. Änderungen vorbehalten. Hausabbildung kann Sonderausstattung enthalten.
Funktionale 226 W / ZFH
Energieeffizienzhau 40

Nettofläche: 224m² - Geschosse: 2 - Walmdach 22° - Außenmaße: 10,02m x 13,61m - Wohnung 1: 94m² - Wohnung 2: 105m² + Balkon 16m²
Unterschiedlich und harmonisch zugleich
Treten Sie ein in dieses einzigartige, zweigeteilte Domizil, in dem zwei Familien ein harmonisches Zuhause finden. Der gemeinsame Hauseingang führt zu einem einladenden Treppenhaus, das den Weg zu zwei einzigartigen Wohnwelten ebnet. Im Erdgeschoss erwartet Sie ein gemütliches Nest für die kleinere Familie, während das Obergeschoss Platz für eine vierköpfige Familie bietet. Die großflächigen Fenster tauchen den Wohnbereich in ein natürliches Lichtmeer und die charakteristische, vielseitige Dachform verleiht diesem großzügigen Haus eine unverwechselbare Silhouette.
Abbildungen und Grundrisse sind aus der Sicht des Illustrators und daher nicht verbindlich. Änderungen vorbehalten. Hausabbildung kann Sonderausstattung enthalten.
Funktionale 206 W / MGH
Energieeffizienzhau 40

Nettofläche: 204m² - Geschosse: 2 - Walmdach 25° - Außenmaße: 10,08m x 12,48m - Wohnung 1: 152m² - Wohnung 2: 51m²
Wo Gemütlichkeit und Unabhängigkeit einen gemeinsamen Nenner finden
Ein gemeinsames Zuhause für Großeltern, Eltern und Kinder. Das untere Apartment schafft Gemütlichkeit für die Großeltern, während das obere mit 3 großzügigen Schlafzimmern und einer geräumigen Garderobe auf zwei Ebenen viel Platz für eine Familie mit 2 bis 3 Kindern bietet. Große Fenster ermöglichen einen direkten Zugang zum Garten. Separate Eingänge geben beiden Generationen ein hohes Maß an Unabhängigkeit und Flexibilität. Das klassische, vierseitige Dach verleiht dem Haus einen einladenden Charme.
Abbildungen und Grundrisse sind aus der Sicht des Illustrators und daher nicht verbindlich. Änderungen vorbehalten. Hausabbildung kann Sonderausstattung enthalten.
Lifestyle Trio
Energieeffizienzhau 40

Nutzfläche: 113m² - Geschosse: 1 - Walmdach 25° - Außenmaße: 13,20m x 11,70m - Erdgeschoß: 113m²
Altersgerechtes Wohnen
Dieser Bungalow bietet beste Rückzugsmöglichkeiten und Privatsphäre unter einem Dach. Die Zimmer sind geschickt voneinander abgetrennt, sodass man zu jeder Zeit ein ungestörtes Plätzchen im Haus findet. Die durchdachte und praktische Raumaufteilung bietet sogar Platz für eine Speisekammer und eine Garderobe im Eingangsbereich. Diese wird durch eine Zimmertüre vom Wohnbereich getrennt, sodass man nie durch Wind oder Lärm beim Öffnen der Eingangstüre gestört wird. Im Standard hat das Haus ein Walmdach, dessen Dachneigung wie bei allen unseren Häusern variabel ist.
Abbildungen und Grundrisse sind aus der Sicht des Illustrators und daher nicht verbindlich. Änderungen vorbehalten. Hausabbildung kann Sonderausstattung enthalten.
Family Fino / DHH
Energieeffizienzhau 40

Nutzfläche: 113m² - Geschosse: 2 - Walmdach 25° - Außenmaße: 11,50m x 6,00m - Erdgeschoß: 57m² - Obergeschoß: 56m²
Doppelhaushälfte als Stadtvilla
Diese clever geplante und stilvolle Doppelhaushälfte bietet optimalen Wohnraumgewinn auf zwei Vollgeschossen. Die 113 m² werden perfekt ausgenutzt, und durch eine clevere Raumaufteilung erscheint dieses kleine Haus besonders geräumig. Ein großer offener Wohn-Essbereich wird durch einen geschickten Raumtrenner vom Treppenhaus abgegrenzt. Durch den Verzicht auf unnötige Wände entsteht ein luftiges und offenes Wohngefühl. Die offene Küche fügt sich nahtlos ein. Dieses Haus trifft den Zeitgeist, indem es den Platz nachhaltig und kosteneffizient nutzt, was sowohl deinem Grundstück als auch der Umwelt und deinem Geldbeutel zugutekommt. Jedes Doppelhaus lässt sich auch als Reihenhaus mit beliebig vielen Parteien realisieren.
Abbildungen und Grundrisse sind aus der Sicht des Illustrators und daher nicht verbindlich. Änderungen vorbehalten. Hausabbildung kann Sonderausstattung enthalten.
Flair Convo
Energieeffizienzhau 40

Nutzfläche: 131m² - Geschosse: 1 1/2 - Satteldach 30° - Außenmaße: 9,67m x 8,43m - Erdgeschoß: 66m² - Dachgeschoß 64m²
Reizende Einfamilienhaus
Mit anderthalb Etagen beeindruckt durch sein behagliches und praktisches Design. Es umfasst vier Räume, eine offene Küche, ein Badezimmer, einen Technikraum und eine Diele und erfüllt auf kompakter Fläche die Anforderungen einer modernen Familie. Der Technikraum ist direkt neben der Küche platziert, wodurch er gleichzeitig als praktische Speisekammer fungiert und zusätzlichen Platz schafft. Das Satteldach mit einer Dachneigung von 40 Grad gibt dem Gebäude eine traditionelle und zeitlose Note. Es sorgt nicht nur für eine ansprechende Optik, sondern bietet auch ausreichend für eine Familie. Das Haus fügt sich durch sein klassisches Äußeres harmonisch in seine Umgebung ein und strahlt eine einladende Atmosphäre aus.
Abbildungen und Grundrisse sind aus der Sicht des Illustrators und daher nicht verbindlich. Änderungen vorbehalten. Hausabbildung kann Sonderausstattung enthalten.
Lifestyl Edge
Energieeffizienzhau 40

Nutzfläche: 117m² - Geschosse: 1 - Satteldach 22° - Außenmaße: 13,82m x 11,82m - Erdgeschoß: 117m²
Moderne Winkelbungalow
Neben den geräumigen 4 Zimmern, Küche und Bad noch einige durchdachte Details. Das Haus verfügt über eine Gesamtbodenfläche von 117 m² und bietet somit ausreichend Platz für komfortables Wohnen. Der großzügige Wohnbereich erstreckt sich über 33,7 m² und bietet viel Raum für Entspannung und geselliges Beisammensein. Das Schlafzimmer ist mit knapp 16 m² besonders geräumig gestaltet, während die beiden weiteren Schlafzimmer jeweils knapp 13 m² bieten, ideal für Kinder oder Gäste. Das Satteldach verleiht dem Bungalow ein klassisches, zeitloses Erscheinungsbild. Jeder unserer Bungalows lässt sich altersgerecht und barrierefrei planen.
Abbildungen und Grundrisse sind aus der Sicht des Illustrators und daher nicht verbindlich. Änderungen vorbehalten. Hausabbildung kann Sonderausstattung enthalten.
Toscana Colina
Energieeffizienzhau 40

Nutzfläche: 125m² - Geschosse: 2 - Walmdach 22° - Außenmaße: 8,82m x 8,82m - Erdgeschoß: 63m² - Obergeschoß: 62m²
Das Haus mit dem überzeugenden Wohn-konzept
Mit diesem besonderen Haus eröffnen sich Ihnen innovative Wohnwelten. Dieses Haus ist konsequent auf die Ansprüche moderner Familien zugeschnitten: Energiesparen, natürliches Licht und offenes Raumkonzept. Unter dem schrägen Dach beginnt Ihr geradliniger Wohnstil. Natürlichkeit ist heutzutage die Devise für modernes Wohnen. Darum ist dieses Enovia Haus mit bodentiefen Fenstern und einer Hebeschiebetüre im Erdgeschoss ausgestattet. Genießen Sie den freien Blick auf Ihren Garten und das Tageslicht in den drei Schlafzimmern und einen großen Wohnraum! So fühlen sich Familien wohl.
Abbildungen und Grundrisse sind aus der Sicht des Illustrators und daher nicht verbindlich. Änderungen vorbehalten. Hausabbildung kann Sonderausstattung enthalten.
Trinova 220 / ZFH
Energieeffizienzhau 40

Nutzfläche: 220m² - Geschosse: 2 - Satteldach 28° - Außenmaße: 13,20m x 11,00m - Wohnung1: 111m² - Wohnung 2: 106m²
Stell dir vor:
Ein Zweifamilienhaus, das nicht nur deiner Familie, sondern auch weiteren unabhängigen Parteien Platz bietet – ideal als Einliegerwohnung oder mit zusätzlichen Wohneinheiten, ganz nach deinen Vorstellungen. Unser innovatives Konzept ermöglicht eine flexible Raumgestaltung in höchster Qualität und schafft so ein Zuhause, das mit deinen Bedürfnissen wächst. Ein Zweifamilienhaus mit Einliegerwohnung ist die perfekte Lösung für Generationenwohnen oder als zusätzliche Einkommensquelle. Das Haus bietet Wohnkomfort und herausragenden Schallschutz auf drei Ebenen. Die Hauptwohnung im Erdgeschoss überzeugt mit offenen Wohnbereichen und direktem Zugang zu den Außenbereichen, die zum Entspannen einladen.
Abbildungen und Grundrisse sind aus der Sicht des Illustrators und daher nicht verbindlich. Änderungen vorbehalten. Hausabbildung kann Sonderausstattung enthalten.
Lifestyle Duo
Energieeffizienzhau 40

Nutzfläche: 79m² - Geschosse: 1 - Satteldach 25°- Außenmaße: 12,00m x 8,00m - Erdgeschoß: 79m²
Dieser kleine und feine Bungalow
Mit einer Nutzfläche von 79 m² bietet der Bungalow ausreichend Platz für ein behagliches Wohngefühl. Ideal für zwei Personen! Das geräumige Badezimmer sorgt für Komfort. Die offene Küche lädt zu geselligen Kochabenden ein, während die leicht nach innen versetzt geplante Terrasse einen ruhigen und geschützten Ort im Freien bietet. Dieses Haus vereint Funktionalität mit gemütlichem Wohnambiente. Die verschiedenen Räume ermöglichen eine individuelle Gestaltung nach persönlichen Bedürfnissen. Entdecke die Vorteile dieses Bungalows, der perfekt auf das Leben zu zweit abgestimmt ist.
Abbildungen und Grundrisse sind aus der Sicht des Illustrators und daher nicht verbindlich. Änderungen vorbehalten. Hausabbildung kann Sonderausstattung enthalten.
Family Lukarna / DHH
Energieeffizienzhau 40

Nutzfläche: 129m² - Geschosse: 1 1/2 - Satteldach 35° - Außenmaße: 10,82m x 7,29m - Erdgeschoß: 65m² - Dachgeschoß: 64m²
Kompakte Doppelhaushälfte
Mit dieser Doppelhaushälfte erwartet dich durchdachte Raumaufteilung auf einer Nutzfläche von 129 m². Jedes Doppelhaus lässt sich auch als Reihenhaus mit beliebig vielen Parteien umsetzen. Die Diele im Family Lukarna verschmilzt im amerikanischen Stil direkt mit den Wohnräumen. Hier wirst du von einer harmonischen Atmosphäre aus Licht und Raum empfangen. Die Küche ist „halb offen“ gestaltet und durch eine subtile Trennung vom Wohnzimmer abgegrenzt. Das Haus umfasst insgesamt 4 einladende Zimmer, die dir vielfältige Nutzungsmöglichkeiten bieten. Die Grundrisse sind flexibel gestaltet und ermöglichen dir, das Haus nach deinen eigenen Vorstellungen anzupassen. Du könntest beispielsweise die Ankleide im Obergeschoss in ein kleines Büro umwandeln oder das Schlafzimmer vergrößern – deiner Kreativität sind kaum Grenzen gesetzt!
Abbildungen und Grundrisse sind aus der Sicht des Illustrators und daher nicht verbindlich. Änderungen vorbehalten. Hausabbildung kann Sonderausstattung enthalten.
Flair Sovrano
Energieeffizienzhau 40

Wohnfläche: 171m² - Geschosse: 1 1/2 - Satteldach 42° - Außenmaße: 11,82m x 8,82m - Erdgeschoß: 86m² - Dachgeschoß: 84m²
Treffpunkt für die ganze Familie
Dieses ansprechende Haus mit 1,5 Geschossen bietet eine großzügige Nutzfläche von 171 m². Mit insgesamt 5 Zimmern, darunter ein geräumiges Wohnzimmer, erfüllt es die Ansprüche einer modernen Familie in vielfacher Hinsicht. Neben einem besonders praktischen zusätzlichen Zimmer im Erdgeschoss finden sich auch ein Arbeitszimmer und eine Ankleide im Haus. Eine Speisekammer im direkten Zugang von der Küche bietet Stauraum. Das traditionelle Satteldach mit einer eleganten Dachneigung von 40° verleiht dem Gebäude zeitlosen Charme. Die Raumhöhe im Obergeschoss wird durch den großzügigen Kniestock von 1,50 m zusätzlich erhöht, was ein angenehmes Ambiente schafft und das Wohngefühl einer Stadtvilla hervorruft.
Abbildungen und Grundrisse sind aus der Sicht des Illustrators und daher nicht verbindlich. Änderungen vorbehalten. Hausabbildung kann Sonderausstattung enthalten.
Toscana Aqudo
Energieeffizienzhau 40

Nutzfläche: 152m² - Geschosse: 2 - Satteldach 25° - Außenmaße: 10,60m x 8,80m - Erdgeschoß: 72m² - Obergeschoß: 75m²
Das Raumausnutzungshaus
Mit einer Nutzfläche von 152 m² beeindruckt dieses zweistöckige Haus mit insgesamt 5 Zimmern. Diese Raumausnutzung wurde durch eine geschickte Planung ermöglicht. Im Erdgeschoss befindet sich das gemütliche Wohnzimmer sowie ein vielseitig nutzbares Zimmer, das sich ideal als Gästezimmer oder Büro eignet. Die offene Küche und der Essbereich sind nahtlos mit dem Wohnzimmer verbunden. Hier findet sich auch ein direkter Zugang zur praktischen Speisekammer. Im Obergeschoss erwarten dich 3 zusätzliche Zimmer und ein geräumiges Badezimmer mit einer T-förmigen Wandgestaltung. Die Räume hier sind sehr großzügig gestaltet und bieten mit jeweils zwischen 14 und 18 m² reichlich Platz. Das größte Zimmer hat zusätzlich eine Ankleide mit 6m², sodass im Haus für reichlich Stauraum gesorgt ist. Selbstverständlich können die Raumgrößen individuell an deine Bedürfnisse angepasst werden.
Abbildungen und Grundrisse sind aus der Sicht des Illustrators und daher nicht verbindlich. Änderungen vorbehalten. Hausabbildung kann Sonderausstattung enthalten.
Lifestyle Attic
Energieeffizienzhau 40

Wohnfläche: 150m² - Geschosse: 1 - Walmdach 25° - Außenmaße: 12,90m x 16,60m - Erdgeschoß: 150m²
Besonders einladender Bungalow
Mit einer großzügigen Nutzfläche von 150 m² vereint harmonisches Wohnen mit funktionalen Räumen und einem Hauch von Luxus. Zwei Drittel des Hauses sind für die privaten Räume vorgesehen. Ein besonderes Highlight ist die Attika, die das Dach über dem „U“ bildet und eine natürliche Überdachung für die Terrasse bietet. Dadurch wird ein angenehmer Schutz vor Wind und neugierigen Blicken von allen Seiten gewährleistet. Für diejenigen, die gerne die frische Luft genießen möchten, steht ein offener Bereich der Terrasse direkt zur Verfügung. Dieser Bungalow bietet dir ein einzigartiges Wohnerlebnis. Von den funktionalen Gemeinschaftsräumen bis hin zu den gemütlichen Privaträumen – hier ist alles auf deinen Komfort und deine Bedürfnisse ausgerichtet. Wie bei all unseren Bungalows lässt sich altersgerechtes, barrierefreies Wohnen hier perfekt umsetzen.
Abbildungen und Grundrisse sind aus der Sicht des Illustrators und daher nicht verbindlich. Änderungen vorbehalten. Hausabbildung kann Sonderausstattung enthalten.
Enovia Haus Referenzobjekte
Mit Enoviahaus kommen Sie sicher und entspannt ans Ziel:
Kostenlose und unverbindlicher Beratung durch unsere langjährigen Hausbau Beratern
Bezahlbare Preise mit einer Festpreisgarantie von 18 Monaten
Individuell auf Ihre Wünsche und Bedürfnisse zugeschnittene Projekte
Erstklassige Qualität durch hohen Vorfertigungsgrad im Werk
30 Jahre auf die Grundkonstruktion
5 Jahre Garantie auf alle übrigen Bauleistungen des Hauses
Zusätzliche Güteanspruch durch eigene Produktion von Fenster und Haustüren
Ihr persönlicher, fester Projektmanager, der Sie begleitet und ans Ziel führt
Nur geprüfte und hochwertige Materialien führender Hersteller
Lieferung und Montage im gesamten Bundesgebiet
Umfassender Kundenservice von Anfang bis Ende
Kostenlose und unverbindliche Bauberatung mit einem Enovia Haus Berater
Online- Video Bauberatung ganz einfach und sicher
Komfortabel daheim am Laptop, Tablet oder PC sprechen Sie mit Ihrem Hausbau-Berater über Ihr geplantes Bauprojekt.
- Live am Tablet, Laptop, PC oder Smartphone
- Keine Installation einer software oder plugins!
- Einfach per Link über Ihren Browser
Persönliche Bauberatung bei Ihnen zu Hause
Gerne besucht unser Hausbau-Berater Sie auch für ein Beratungsgespräch zu Hause.
- Keine Anfahrt für Sie
- Selbstverständlich auch am Samstag

Deine Enovia Haus Berater
- Mo – Fr
- 10:00 – 18:00
- Samstag
- 10:00 – 15:00
- Sonntag
- Geschlossen

Bayern / Baden Württemberg
Berater Thomas Bärtle
Telefon 0157 / 85071577

Franken / Thüringen
Berater Raimund Fuchs
Telefon 0176 / 24187813

Musterhaus Besuche nur nach vorheriger Terminabsprache mit einem Enovia / GreenHomes Berater









































































































































































